Najważniejszy adres w okolicy
Kameralna inwestycja Vision Development
Pryncypalna 66
Pryncypalna 66 to nowa inwestycja Vision Development, zlokalizowana w Łodzi, u zbiegu ulic Pryncypalnej i Mieszkalnej. Osiedle wyróżnia się doskonałą komunikacją z centrum miasta oraz spokojnym, kameralnym charakterem.
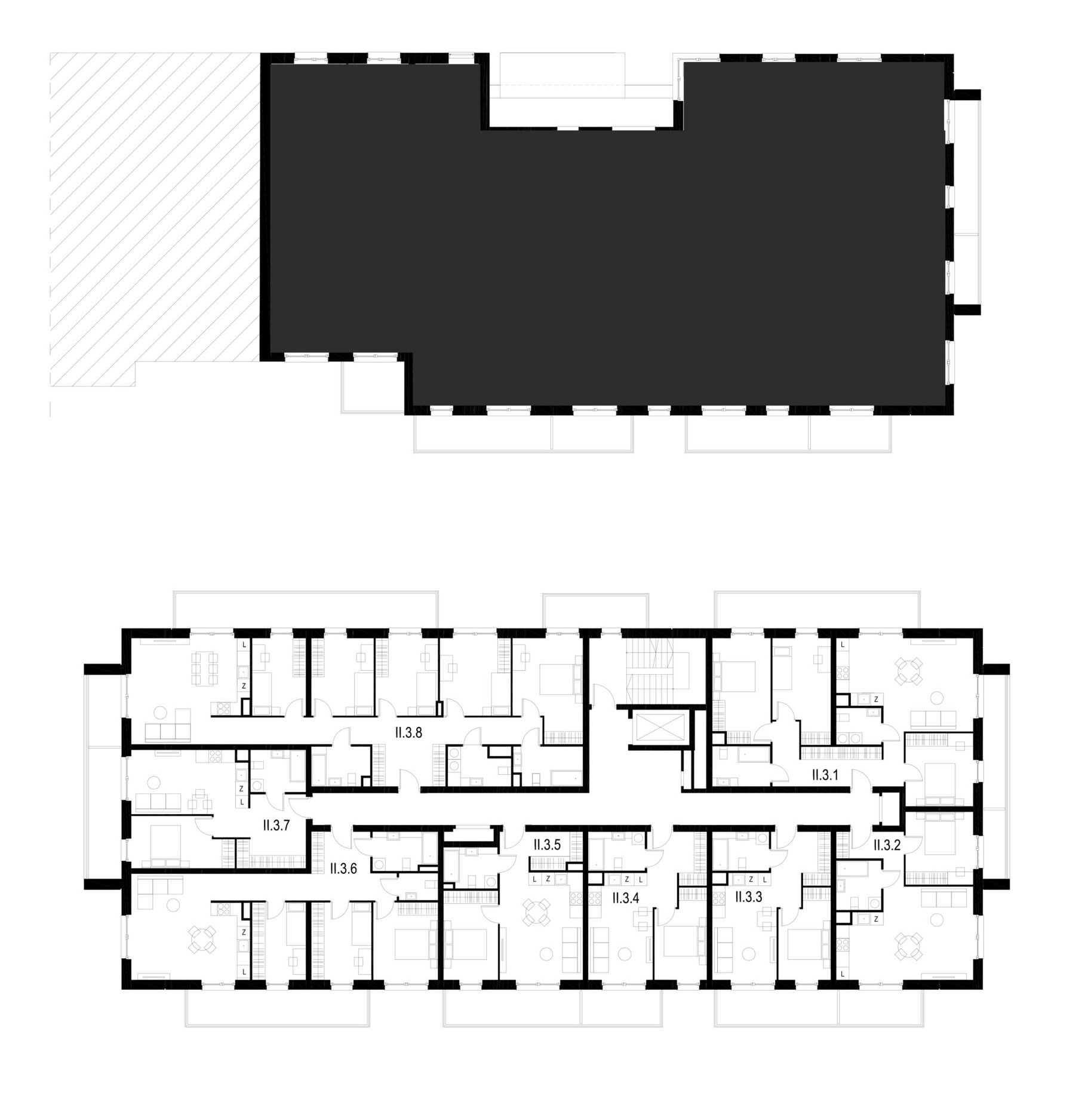
W ramach projektu powstaną dwa nowoczesne budynki z podziemnym garażem. Inwestycja obejmuje 51 funkcjonalnych mieszkań, zaprojektowanych z myślą o wygodzie i komforcie przyszłych mieszkańców, oraz 95 miejsc postojowych w garażu podziemnym.

Atuty

Mieszkania
Mieszkania zostały zaprojektowane z myślą o różnych potrzebach – od osób poszukujących swojego pierwszego lokum, po tych, którzy pragną zwiększyć komfort i przestrzeń swojego mieszkania, a także inwestorów poszukujących nieruchomości o dużym potencjale rynkowym.
Sprawdź ofertę P66.

Wybierz mieszkanie dla siebie
Liczba pokoi
Powierzchnia mieszkania
Status
Dostępne
Zarezerwowane
Sprzedane
Wybranych mieszkań: 3
















































O inwestycji
Za projekt osiedla odpowiada renomowana i wielokrotnie nagradzana łódzka pracownia architektoniczna – Reform Architekt. Kompleks obejmuje dwa starannie zaprojektowane budynki o zróżnicowanej wysokości – trzypiętrowy obiekt od strony ulicy Pryncypalnej oraz czteropiętrowy budynek usytuowany w głębi inwestycji.
W dwu poziomowym garażu podziemny przewidziano liczne miejsca postojowe, obszerne komórki lokatorskie oraz możliwość montażu ładowarki elektrycznej przy każdym miejscu postojowym.
Pryncypalna 66 to inwestycja położona w dogodnej lokalizacji, w sąsiedztwie szkół, liceów, sklepów, drogerii oraz przystanków komunikacji miejskiej i kluczowych węzłów drogowych Łodzi. Bliskość dworca Łódź-Chojny, Chojeńskiego Klubu Sportowego oraz Stawów Jana sprawia, że osiedle łączy wygodę miejskiego życia z łatwym dostępem do terenów rekreacyjnych i sportowych.
Lokalizacja
Dodatkowym atutem jest bliskość parku handlowego z drogerią i marketem. Tuż przy inwestycji znajduje się przystanek komunikacji miejskiej, zapewniający szybkie połączenia z resztą miasta.
Miłośnicy natury docenią Park Stawy Jana. W pobliżu znajdują się też Politechnika Łódzka oraz centra handlowe Sukcesja i Port Łódź. Pryncypalna 66 łączy komfort życia z dostępem do natury, edukacji i miejskich atrakcji.
Wykończenie pod klucz
Postaw na wygodę, spokój i pewność doskonałego efektu. Współpracujemy z doświadczoną firmą WS Budownictwo, która oferuje kompleksowe pakiety wykończeniowe – idealne zarówno dla inwestorów przygotowujących mieszkanie pod wynajem, jak i dla osób urządzających własne cztery kąty.
Nie musisz martwić się ekipami, dostawami czy terminami – wszystkim zajmują się specjaliści, a Tobie pozostaje tylko to, co przyjemne – projektowanie i dobór wykończenia. To sposób na oszczędność czasu, nerwów i pieniędzy oraz gwarancję, że odbierzesz mieszkanie gotowe do zamieszkania lub wynajmu – urządzone dokładnie tak, jak chcesz.
Finansowanie
Zakup mieszkania to ważna decyzja – dlatego dbamy, aby nasi klienci nie zostali z tym sami. Dzięki współpracy z profesjonalnymi doradcami kredytowymi zapewniamy pełne, indywidualne wsparcie na każdym etapie procesu kredytowego.
Nasi partnerzy krok po kroku poprowadzą Cię przez cały proces – od zbadania zdolności kredytowej, przez wybór najkorzystniejszej oferty spośród wielu banków, aż po podpisanie umowy. Nawet jeśli nie wiesz, od czego zacząć, możesz być pewien, że eksperci mFinanse otoczą Cię profesjonalną opieką i zadbają o każdy detal Twojego finansowania.




















